Ответ.
Задать вопрос!
Вход Регистрация
Задать вопрос!
Все категории
  • Фотография и видеосъемка
  • Знания
  • Другое
  • Гороскопы, магия, гадания
  • Общество и политика
  • Образование
  • Путешествия и туризм
  • Искусство и культура
  • Города и страны
  • Строительство и ремонт
  • Работа и карьера
  • Спорт
  • Стиль и красота
  • Юридическая консультация
  • Компьютеры и интернет
  • Товары и услуги
  • Темы для взрослых
  • Семья и дом
  • Животные и растения
  • Еда и кулинария
  • Здоровье и медицина
  • Авто и мото
  • Бизнес и финансы
  • Философия, непознанное
  • Досуг и развлечения
  • Знакомства, любовь, отношения
  • Наука и техника
Вова маленький [118K]
5 лет назад
1

СУР квартиры, что это?

СУР квартиры, что это?

другое
дом
квартира
+1
сур
1 ответ:
Европан [36K]5 лет назад
1 0

Такая аббревиатура используется в характеристиках жилой недвижимости и в сокращении имеет расшифровку: Сан Узел Раздельный, то есть ванная комната и туалет находятся в различных помещениях. Также буквы могут быть поменяны местами , и тогда это будет звучать так: РСУ, что означает Раздельный Сан Узел. СУС будет обозначать, что Сан Узел Совмещённый, то есть туалет и ванна (или душ) находятся в одной комнате, в одном помещении.

Читайте также
Что для Вас уют в доме? Как его создать?
Ольга1971 [99.1K]

Для меня уют в доме - это:

  • чистота;
  • свежий воздух во всех комнатах и отсутствие посторонних запахов;
  • отсутствие лишних предметов, которые загромождают пространство. Предпочитаю стиль минимализм и стараюсь избавляться от предметов, которыми не пользовалась 3-4 года (правило "одного года", которым руководствуются приверженцы фен-шуй, считаю не совсем подходящим, так как какая-то вещь может использоваться очень редко, например, только во время ремонта);
  • отсутствие заметных повреждений на мебели, стенах, бытовой технике и прочих предметах, которые могут свидетельствовать о неаккуратности хозяев и необходимости срочного ремонта;
  • грамотно подобранный интерьер: основные вещи должны гармонировать по тону, быть удобно расставлены;
  • наличие необходимых удобств, будь то теплая вода в водопроводном кране или включенный кондиционер жарким летом.

К сожалению, далеко не все пункты желаемого уюта я могу воплотить - все опирается в нехватку средств и сопротивление других членов семьи. Но то, что зависит от меня в создании уюта, стараюсь делать обязательно.

1 0
5 лет назад
Прочитать ещё 3 ответа
Что включает в себя перепланировка квартиры?
zlyden [37.8K]

Перепланировка квартиры подразумевает изменение площади помещений (комнат), входящих в состав квартиры. Это делается за счёт удаления (возведения) стен внутри квартиры. Но все изменения должны быть согласованы с архитектурным отделом

ЗЫ. В настоящий момент установка кондиционера тоже относится к перепланировке.

1 0
5 лет назад
Прочитать ещё 2 ответа
Во сколько обойдется чистовая отделка и ремонт комнаты в 18 кв.м?
sviatoyalexiy [7.1K]

Все будет зависеть от материалов, которыми вы намериваетесь отделать комнату площадью 18 кв.м. Матерталы могут быть попроще, а могут быть поинтереснее. Например пол можно сделать доской, ламинатом, паркетом, линолеумом, причем линолиум может оказаться не таким дешевым и стоить столько же, сколько и ламинат... и при этом выглядеть лучше и практичнее исполнять свою функцию. Двери так вообще все стоят по разному - от мала до велика. Материал стен - панели, обои, краска- опять же каждый материал есть дешевле, а есть и дорогой. Делая чистовую отделку и ремонт главное всегда помнить - дорого не всегда хорошо, и дешево - не всегда плохо. Иногда стильное и красивое решение находится далеко не в дорогой категории товаров. По ценам я думаю это где- то от 20 тыр что попроще... и выше. В завистмости от региона, от стоимости выполняемых работ, оь качества продукции и самое главное сможете ли вы найти необходимый товар по самой низкой цене(пример: мы к примеру нашли шкаф - цена 16500 - дешево? - да вполне, но мы пошли дальше и нашли его за 11500)

2 0
5 лет назад
Прочитать ещё 2 ответа
В чем плюсы и минусы ленинградки?
Zhan677 [7.4K]

Ленинградка - это первоклассная система отопления. Себе сварил такую-же. Доволен. Нет лишних труб - всё пластиковое смотрится красиво. А при этом нагревается очень быстро. почти не расходует дров. топлю щепками. И жара - +28 градусов в доме. Только старайтесь сделать объем воды побольше. чем больше воды тем дольше держать тепло будет. и чтобы ещё сэкономить топливо - варите металлическими трубами.

1 0
5 лет назад
Прочитать ещё 2 ответа
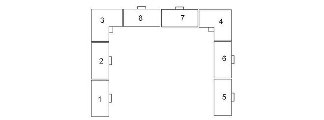
Почему в некоторых домах нумерация подъездов и квартир в обратном порядке?
Вова маленький [118K]

Златоуст не одинок в своей необычайности. Большинство городов имеют свой исторический центр с условным «нулевым» километром, от которого растекаются главные улицы, а домам присвоена нумерация от этой точки отсчёта. Следуя направлению возрастающей нумерации домов, располагаются и номера подъездов, т. е. по одной стороне улицы слева направо, по другой — наоборот. Именно такого правила придерживаются в зарубежье.

В настоящее время в России принят порядок отсчёта подъездов слева направо. Правда, в строительных СНиПах этот момент никак не оговаривается. Так в СНиПе 31-01-2003 «Здания жилые многоквартирные», вы не встретите слов «подъезд» и «нумерация». Если в проектной документации на строительство порядок подъездов и указывается, то это не гарантирует, что он не будет изменён в дальнейшем.

Например, он может поменяться для удобства строителей, в порядке постройки. Неразбериху добавляют сложные строения, когда одна часть входов в подъезд расположена на фасаде, а во дворе другая. При расположении домов буквой П, нумерация подъездов может начинаться с одного конца, продолжается с какого-то промежутка с начала второго и заканчивается посередине. Эта чехарда случается, когда два дома соединятся пристройкой между ними. Из-за этого начинается путаница с номерами квартир.

Что бы не оставили после себя строители, застройщик, теоретически, может поменять всю нумерацию при составлении договоров долевого участия, а также во время сдачи домов, когда БТИ будет подготавливать технического паспорта на квартиры.

Подсчет квартир может вестись слева направо или по ходу движения людей на лестничной клетке.

В общем, творческому подходу препятствий нет, нормативов нет. Кроме этого, неразбериху добавляют старые постройки, подвергшиеся капитальной реконструкции, когда сохраняется «исторически» сложившаяся нумерация.

Видимо устав от такой вакханалии городской думе города Волгоград в 2015 году пришлось издать любопытный документ: «Положение о присвоении, изменении, аннулировании адресов на территории Волгограда». Интересен он тем, что остаётся вопрос, не прибавил ли он ещё большей неразберихи, и во сколько обошлась сия затея.

7 0
5 лет назад
Прочитать ещё 6 ответов
Смотрите также:
  • Нужна ли охранная сигнализация квартиры?
    3·4 ответа·дом
  • Как сделать свою квартиру просторнее и больше?
    1·3 ответа·дом
  • Где бы Вы хотели жить - в частном доме или в квартире и почему?
    5·16 ответов·дом
  • Где в России самые дешевые дома и квартиры?
    10·11 ответов·дом
  • Продажа квартир в Москве, какой сайт лучше использовать?
    1·1 ответ·дом
  • В каком доме и районе лучше жить (см. описание)? Что бы вы выбрали?
    2·8 ответов·жизнь
  • Какова себестоимость квартиры на 2015 по России?
    0·1 ответ·дом
  • Какой вид жилья вы бы предпочли? Дом или квартиру? Почему?
    2·7 ответов·дом
  • Где хранить велосипед в однокомнатной хрущевке?
    3·6 ответов·дом
  • Сделать дверь из досок, реально?
    2·2 ответа·дом
Добавить ответ
Вход
Не зарегистрированы? Пройти быструю регистрацию
Регистрация
Вход Регистрация
Задать вопрос!